1998 [0L012052 THRU 0L339999] - Cat.# 90-80950098
-
БЛОК ЦИЛИНДРОВ И РАСПРЕДЕЛИТЕЛЬНЫЙ ВАЛ
-
ВПУСКНОЙ КОЛЛЕКТОР И ПЕРЕДНЯЯ КРЫШКА
-
ВЫНОСНОЙ МАСЛЯНЫЙ ФИЛЬТР
-
ВЫХЛОПНАЯ СИСТЕМА
-
ВЫХЛОПНОЙ КОЛЛЕКТОР И ВЫХЛОПНОЙ КОЛЕНЧАТЫЙ ПАТРУБОК
-
ГЕНЕРАТОР (MANDO)
-
ГОЛОВКА ЦИЛИНДРА И КРЫШКА КОРОМЫСЛА
-
ДАТЧИКИ И СЕНСОРЫ
-
ЗАКРЫТАЯ СИСТЕМА ОХЛАЖДЕНИЯ
-
КОЛЕНЧАТЫЙ ВАЛ И МАХОВИК
-
КОМПОНЕНТЫ MERCATHODE
-
КОМПОНЕНТЫ РУЛЕВОГО МЕХАНИЗМА С УСИЛИТЕЛЕМ
-
КОРПУС ДРОССЕЛЬНОЙ ЗАСЛОНКИ
-
КОРПУС МАХОВИКА (БЕЗ BLACKTRAC)
-
КОРПУС МАХОВИКА (С BLACKTRAC)
-
КРЕПЛЕНИЕ ДВИГАТЕЛЯ
-
КРОНШТЕЙН ПЕРЕКЛЮЧЕНИЯ ПЕРЕДАЧ (ДВИГАТЕЛИ ALPHA)
-
КРОНШТЕЙН ПЕРЕКЛЮЧЕНИЯ ПЕРЕДАЧ (ДВИГАТЕЛИ BRAVO)
-
МАСЛОСБОРНИК И МАСЛЯНЫЙ НАСОС
-
МАСЛЯНЫЙ БАК И КРОНШТЕЙН
-
МАТЕРИАЛ ДЛЯ ОБСЛУЖИВАНИЯ И ПОДДЕРЖКИ
-
НАСОС ДЛЯ ЗАБОРТНОЙ ВОДЫ В СБОРЕ
-
ПОРШНИ И СОЕДИНИТЕЛЬНЫЕ СТЕРЖНИ
-
РАСПРЕДЕЛИТЕЛЬ И КОМПОНЕНТЫ СИСТЕМЫ ЗАЖИГАНИЯ
-
РАСПРЕДЕЛИТЕЛЬНАЯ КОРОБКА И КОМПОНЕНТЫ
-
СТАНДАРТНАЯ СИСТЕМА ОХЛАЖДЕНИЯ
-
СТАРТЕР И ГЕНЕРАТОР
-
ТОПЛИВНЫЙ НАСОС И ОХЛАДИТЕЛЬ ТОПЛИВА
-
ТОПЛИВНЫЙ ФИЛЬТР
-
ТРАНСМИССИЯ BLACKTRAC
-
ТЯГА ГАЗА
-
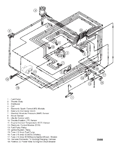
ЭЛЕКТРОПРОВОДКА (EFI)
-
ЭЛЕКТРОПРОВОДКА (ДВИГАТЕЛЬ)